下载com绿色软件园 - 努力做内容最丰富最安全的下载站!
软件频道
安卓市场
苹果市场
游戏下载
专题合集
最近更新
热门搜索:qq影音 分区助手 3dmark flashfxp idm破解版 百度输入法
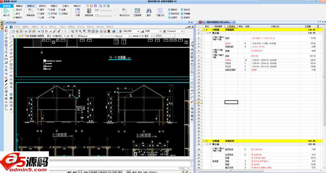
算算量软件是一款cad算量插件软件。右侧的工具条,主要是一些CAD功能,占据软件最大范围的是表格。上方的工具条是一些软件的常用功能。适合建筑、安装、市政等各个工种的算量工作。 6.0版本全新的ROBBIN界面,更加快速便捷地使用表格算量软件的功能,快速有效的进行表格手工算量及CAD图元对象数据的识别拾取。
1、在顶部功能分页区的选项中添加“CAD常用选项” 2、该选项中增加四个常用CAD设置: 连接符、图纸比例、获取长度颜色、获取面积颜色
腾讯视频电脑版v11.84.9528.0官方正式版
哔哩哔哩v1.13.5官方正式版
qBittorrent绿色免费版v4.5.4.10
元气壁纸v2023.5.25.873官方正式版
钉钉v7.5.30官方正式版
360安全卫士官方版v14.0.1.1141官方正式版
抖音电脑版v2.2.2 官方正式版
企业微信v4.1.16.6007官方正式版
优酷v9.2.36.1001官方正式版
阿里旺旺电脑版v10.01.03C官方正式版
腾讯视频v11.84.9528.0官方正式版
火狐浏览器电脑版(Firefox)v123.0.1
谷歌浏览器电脑版2024最新版V129.0.6668.71官方正式版
QQv9.9.10官方正式版
2345浏览器电脑版v12.1
迅雷电脑版v12.0.8.2392
搜狗输入法电脑版v13.13.0.8820官方正式版
鲁大师PC版v6.1023.3890.1218官方正式版
QQ音乐电脑版v20.05官方正式版
QQ输入法V6.6.6304.400官方正式版
酷狗2024v10.2.50.25708官方正式版
芒果TVv6.7.15.0官方正式版
腾讯电脑管家电脑版v16.9.24712.211官方正式版
CAD迷你看图
CAD版本转换器(Acme CAD Converter 2013)
公众号
网友评论